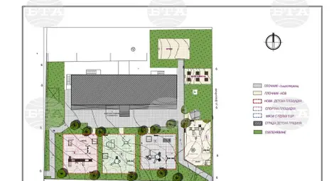
Четири детски площадки в детска градина „Здравец“ в Троян ще бъдат обновени по проект
„Дворовете на детските градини в общината последователно се обновяват със средства по проект „Красива България“ и от общинския бюджет. Всяка година се преценява къде е необходимо да бъде насочен ресурсът, съобразно необходимостта от промяна, естетизиране и подмяна на инфраструктурата и съоръженията“, каза за БТА Донка Михайлова, кмет на община Троян. Тя очаква в ранната есен проектът да бъде приключен и децата да могат да играят на обновените съоръжения.
Към началото на 2024 г. ДГ „Здравец“ е посещавана от общо 87 деца, каза за БТА Вяра Дочева, началник на отдел „Образование, култура, спорт и демографска политика“ в администрацията.
Проектът цели цялостно обновяване на общо четири детски площадки на територията на градината, поставяне на нова настилката, беседка, маси и столчета за отдих, допълниха от администрацията. Общата стойност на проектното предложение е 234 136 лв. Проект „Красива България“ ще осигури 60 % от необходимото финансиране, а останалите 40 % са за сметка на общинския бюджет.


Следете новините ни и в GoogleNews